棕榈泉悦江国际(现代中式)介绍
Introduce
涉江亲到锦屏上 却望城郭如丹青 水墨丹青可以形容 景色的灵动之美 水墨丹青可以比喻手法 如行云流水 水墨丹青可以雕刻 岁月的不停轮回 水墨丹青可以描绘 人间的是是非非 李玉刚《
设计师详情
Design details
戴杰
戴杰
性别:
毕业学院:
四川美术学院
从业时间:
6年
现任职务:
主笔设计师
联系方式:
400-622-5990
门店:
南坪店
设计类别:
家装设计
设计风格:
现代简约、轻奢、现代美式、北欧、现代轻奢等
个人感悟:
生活是创意的来源,创意源于文化,创意源于自己
设计定位:
设计理念:
生活是创意的来源,创意源于文化,创意源于自己
作品荣誉:
中渝梧桐郡、协信星都汇、保利香雪、建工依山郡、润丰水尚、金辉御江府、蓝光林肯公园、九棠府、保利堂悦、紫御江山等等
立即咨询
棕榈泉悦江国际(现代中式)
赞一下(0)
楼盘地址:棕榈泉悦江国际
户型:
设计风格:新中式
预算: zj万
涉江亲到锦屏上
却望城郭如丹青
水墨丹青  可以形容
景色的灵动之美
水墨丹青  可以比喻手法
如行云流水
水墨丹青  可以雕刻
岁月的不停轮回
水墨丹青  可以描绘

人间的是是非非

——李玉刚《水墨丹青》


 
 

·项目信息·

·Information·
 

项目地址:棕榈泉悦江国际

项目面积:180㎡

设计风格:新中式

常住人口:3-5人

本案设计中,客户因为喜欢复古、宁静、优雅的生活方式,所以敲定新中式风格为整体的设计基调。设计师结合客户需求与户型实际,满足了客户对新家的期待。

 

 

 

 

·项目详解·

·Project explanation·



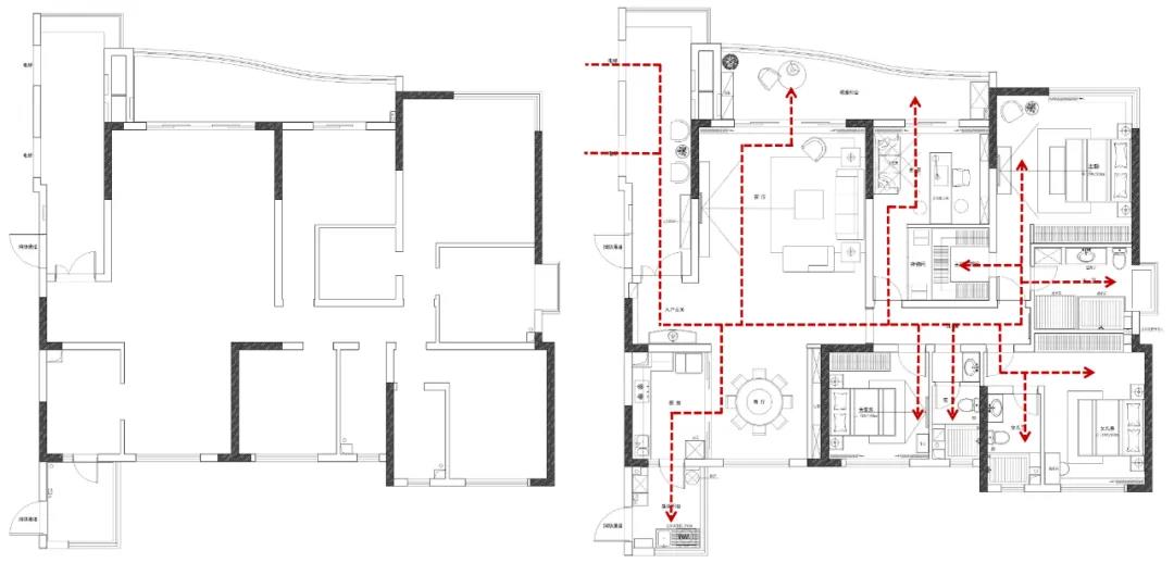
本案户型方正,立于布局与设计。超大会客厅奢华大气,两个大型观景阳台贴近自然,风光尽揽。生活阳台与厨房连为一体,扩宽使用空间。主卧配备衣帽间与独立卫生间,满足客户梳洗和更衣之用。

 

 

 

 

·案例赏析·

·Case appreciation·
·客厅·

客厅设计上采用浓厚的新中式元素,不论是墙面的山水画、还是线条勾勒如窗棂的花纹装饰,无一不透露着中式独有的诗画韵味。电视墙采用大理石花纹,灵动自然、奢华尊贵,再加以盘虬盆栽,打造出极富古典气息的空间气质。



 

·茶室·

 

独立茶室既是待客休闲之所,也能作书房之用。仿古典柜体的设计与山水式吊灯映衬,室内空间娴静雅致,恍惚已有茶香满室。





·餐厅·

餐边柜的设计,利于物品的摆放和存取。上方柜体门透明,既能做收纳之用,也能作酒柜展示之用。与整体风格相符合的圆形餐桌,再次点名新中式的主题,更表达了传统文化中对“团圆”的期待。




·厨房·

厨房操作台做L型设计,动线流畅,宽敞便捷。生活阳台与之连通,相对扩宽厨房的适用范围。家电配备齐全,烘焙、烤制都不在话下。


·卧室·

 

卧室整体去除复杂的设计元素,精准提炼最能表达风格的颜色,以灰绿、灰白、米色等低饱和度的色调进行搭配,打造出素雅简洁、又颇有中式风韵的休憩空间。


主卧及主卫·

 

主卧床头山水画再次点明新中式主题,深棕色墙面与白色墙面中和,厚重也不失飘逸。无主灯设计让室内光线更加柔和,主人在此休息睡眠体验更好。卫生间做干湿分离,便于保持清洁,淋浴室做防滑设计,小细节很重要。

 
 

·项目信息·

·Information·
 

项目地址:棕榈泉悦江国际

项目面积:180㎡

设计风格:新中式

常住人口:3-5人

本案设计中,客户因为喜欢复古、宁静、优雅的生活方式,所以敲定新中式风格为整体的设计基调。设计师结合客户需求与户型实际,满足了客户对新家的期待。

 

 

 

 

·项目详解·

·Project explanation·
 
ANBO.COM - 安博(中国)
精彩案例
wonderful case

在线客服

关注ANBO.COM官方公众号及时订阅最新优惠资讯
ANBO.COM - 安博(中国)