重庆ANBO.COM
网站首页
公司简介
新闻中心
设计团队
作品鉴赏
服务专区
口碑评价
查询
服务热线:
400-622-5990
我们是谁?
我们听过什么样的服务?
我们为谁服务?
家装专区
小户型
两居室
三居室
复式
跃层
洋房
别墅
公装专区
10万以下
100万以上
餐饮
酒店
办公
娱乐
装修风格
中式
欧式
法式
简欧
混搭
田园
现代
鲁能领秀城(现代风格)介绍
Introduce
二楼原始平面图 二楼平面动线图 一楼原始平面图 一楼平面动线图 会客厅 阳台 餐厅 楼梯间 主卧 衣帽间 主卫
设计师详情
Design details
家装图库
公装图库
杨絮
性别:
男
毕业学院:
四川美术学院
从业时间:
15年
现任职务:
设计总监
联系方式:
400-622-5990
门店:
南坪设计中心
设计类别:
公装设计和家装设计
设计风格:
美式乡村、蓝色地中海、新古典、后现代、中式、欧式及现代欧式等
个人感悟:
永远对生活充满激情,对事物有着敏锐的洞察力,我喜欢这样的生活状态!
设计定位:
设计理念:
设计关键在于优美地解决业主提出的问题,对美的感受能力,对功能适应性实用性!!
作品荣誉:
龙湖源著、东原香山、龙湖睿城、珊瑚水岸、西政天高鸿苑、珊瑚水岸、庆隆高尔夫·钻石岛、天域嘉玲、南岭雅舍、银河证券、龙腾汽车4S店等
立即咨询
鲁能领秀城(现代风格)
赞一下(0)
楼盘地址:
鲁能领秀城
户型:
别墅
设计风格:
现代
预算:
zj万
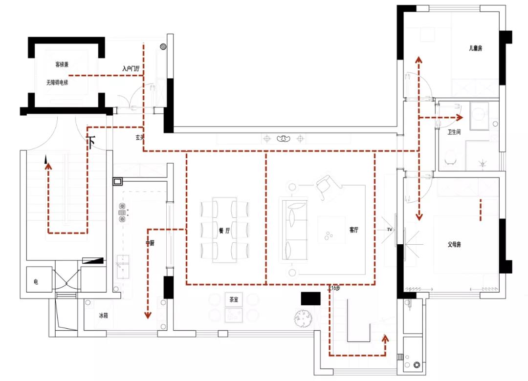
二楼·原始平面图
二楼·平面动线图
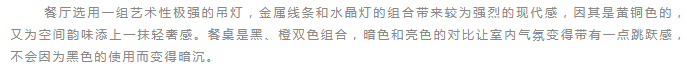
一楼·原始平面图
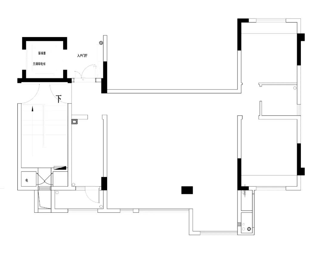
一楼·平面动线图
会客厅
阳台
餐厅
楼梯间
主卧
衣帽间
主卫
上一篇:
博朗澜庭(现代风格)
下一篇:没有了
精彩案例
wonderful case
万科金域学府(简欧)设
保利梧桐(轻奢风格)
春风与湖(混搭)
雅居乐御宾府(美式)
龙湖U城(现代风)
逸翠庄园(美式)
安纳溪湖(现代风)
万科金域学府(美式)设
津都海岸(现代简约)
财信渝中城(现代)设计
在线客服
在线客服
留言预约
关注ANBO.COM官方公众号及时订阅最新优惠资讯
ANBO.COM - 安博(中国)