禾宇美食南坪步行街形象店介绍
Introduce
设计师详情
Design details
杨絮
杨絮
性别:
毕业学院:
四川美术学院
从业时间:
16年
现任职务:
设计总监
联系方式:
400-622-5990
门店:
南坪设计中心
设计类别:
公装设计和家装设计
设计风格:
美式乡村、蓝色地中海、新古典、后现代、中式、欧式及现代欧式等
个人感悟:
永远对生活充满激情,对事物有着敏锐的洞察力,我喜欢这样的生活状态!
设计定位:
设计理念:
设计关键在于优美地解决业主提出的问题,对美的感受能力,对功能适应性实用性!!
作品荣誉:
龙湖源著、东原香山、龙湖睿城、珊瑚水岸、西政天高鸿苑、珊瑚水岸、庆隆高尔夫·钻石岛、天域嘉玲、南岭雅舍、银河证券、龙腾汽车4S店等
立即咨询
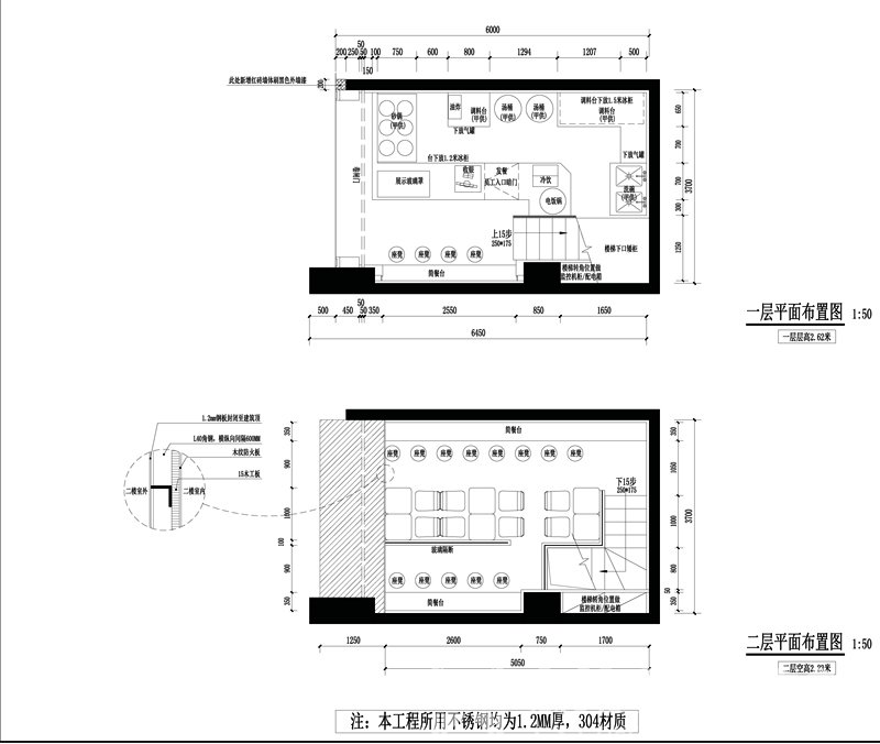
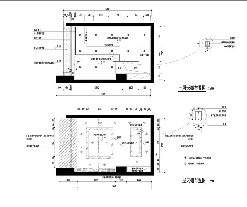
禾宇美食南坪步行街形象店
0
楼盘地址:
公装分类:餐饮类
预算:
访问次数:3125
在线客服

关注ANBO.COM官方公众号及时订阅最新优惠资讯
ANBO.COM - 安博(中国)