御景天下(欧式)风格介绍
Introduce
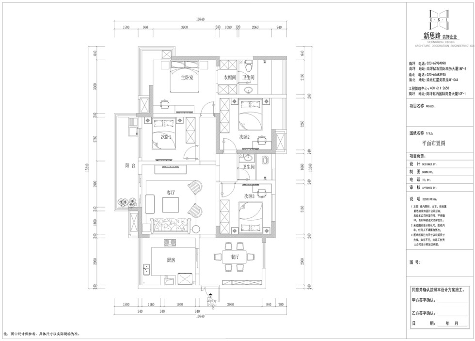
御景天下 ● 户型面积:110㎡ ● 设计风格:欧式风格 ● 设计师 :胡先国 ● 整体预算:35万 效果图欣赏
设计师详情
Design details
御景天下(欧式)风格
0
楼盘地址:御景天下
户型:三居室
设计风格:欧式
预算:

御景天下

● 户型面积:110㎡          
● 设计风格:欧式风格

● 整体预算:35万   

 在强调线型流动的变化时,根据柔和的色调,展现出欧式风格的浪漫氛围。在装修材料的选择中,欧式风格多以大理石、多彩的织物、精美的地毯和精致的挂画等,来强调整个风格豪华、富丽及强烈的动感效果。另外也有轻快纤细的曲线装饰,呈现出一种典雅、亲切的美感。在面积宽敞的别墅空间内,欧式风格根据一定的美学素养及精益求精的细节处理,带给业主不尽的舒适感!

效果图欣赏









在线客服

关注ANBO.COM官方公众号及时订阅最新优惠资讯
ANBO.COM - 安博(中国)