
从业时间 12年
设计理念 用心观察生活,感悟人生真谛,让设计与生活互动
擅长风格 现代风格、美式风格、北欧风格、欧式风格、中式风格等

项目地址 保亿湖山鹿鸣
项目面积 136m²
设计风格 现代
常住人口 2人


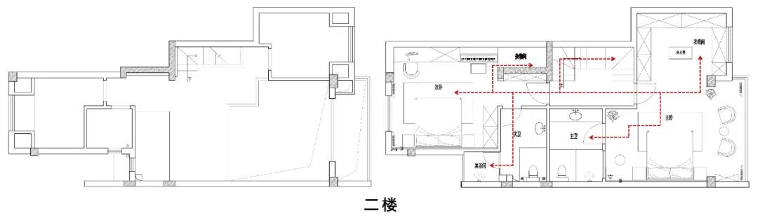
Second floor distribution master bedroom, second bedroom two bedrooms, a rest area for the client. The master bedroom is equipped with an independent bathroom and walk-in cloakroom to meet the needs of the elderly for washing and changing clothes. Admire defend area of stage basin, shower and closestool space into 3 areas, convenient use also be to accomplish dry wet separation at the same time, made sure the cleanness of toilet.


The first floor is the living area, and the oversized meeting room gives people a sense of spacious atmosphere. Because consider permanent living population is not much, and it is two old people, food is relatively delicate, do not need particularly much cooking function relatively for, also won't produce particularly much lampblack, use the design of open mode kitchen so, dining-room and kitchen are connected as an organic whole, also be to reduce a space to break up, convenient old people walk, have dinner.
·案例赏析·



·会客厅·
·living room·
在会客厅的设计上,采用当下现代风格设计中流行的无主灯方案,配合超大的观景落地窗,让室内的光线明亮柔和而不刺眼。色彩搭配上,选择深浅结合的方式,深的是木纹、浅的是大理石和皮质沙发,组合出略带奢华、但又低调内敛的空间氛围。

·餐厅·
·Dinner room·
Considering the relatively small number of permanent residents and diners, we only choose a table for four people, which meets the daily needs of customers and is also convenient for the display of dishes and table care. "L" model kitchen design, move line is fluent, area is wide, reduce the possibility that produces collision, reflect what we take "with person this" design concept and care to the old person.

·次卧·
·Second bedroom·
次卧是预留给来探望老人的儿女的。因为是年轻人居住,所以在设计上,我们将整体风格定位得更偏向年轻化、浪漫化,暖色系和带有粉色的空间温馨美好,满足年轻人的审美需求。

·主卧·
·Master bedroom·
主卧我们沿用会客厅的设计思路和配色,仍旧是以暖棕色、深南瓜色和米白、暖灰等颜色搭配组合,并选用比较具有艺术感造型的吊灯,让整个空间在保持属于家的那份温馨前提下又有更多的美感。茶几是为客户夫妻专门准备的,闲暇时在此小坐品茗,聊聊生活,谈谈往事,不失为好去处。

·衣帽间·
·Cloak room·
独立的步入式衣帽间面积宽阔,设计较多的柜子并进行多种分区,方便客户在此进行更衣和储存。部分柜体采用玻璃门的设计,通透、有质感。比较高的换鞋凳是出于客户的年龄的考虑,也是人性化设计的体现。

·主卫·
·Master bathroom·
主卫的设计上,三分隔的设计与悬空的柜体能最大限度减少积水的产生,易于打理和保证卫生间的清洁,大面积的梳妆镜大方好看。淋浴间特制防滑设计,增大摩擦力,预防老人洗澡时跌倒。
Adopt the design that defends on, the design of 3 disjunction and suspended cabinet body can minimize the generation of seeper, do easily and ensure the cleanness of toilet, the dressing mirror of large area is easy good-looking. Shower room special anti - slip design, increase friction, prevent the elderly fall when taking a bath.