【九龙花园东郡】三口之家的美式温馨小屋
作者:admin  发布时间:2019-06-09
人生若是标点符号
它不会永无止境地追求一个目标
得到的都会划上句号
失去的也将省略忘掉
什么梦想誓言 都是浮云
她只属于青春年少
                                                                        ——牧野《语数外中的人生》


『项目简介』

楼盘地址:九龙花园东郡
项目户型:三室二厅
户型面积:90m2
设计风格:美式风格
设计师:温丽萍
 

『客户简介』


 
一对幸福恩爱的夫妻,一个沉迷摇滚音乐的少年,还有一只可爱的小泰迪妹妹,组成了这个小家庭。夫妻俩从事销售行业,早出晚归,为了幸福生活奋斗不息。帅气高大的儿子在读高中,对音乐兴趣很浓,正学习架子鼓,梦想是能够创建一支摇滚乐队。
他们对新家的要求也很简单:“三口之家,温馨一点嘛。”
而他们也非常相信设计师的设计水平,没有什么特殊的要求,留给我们设计师的发挥空间很大。在综合了他们的意见后,我们决定使用美式的装修风格,最后装修的成品客户也表示非常满意,符合预期。


 
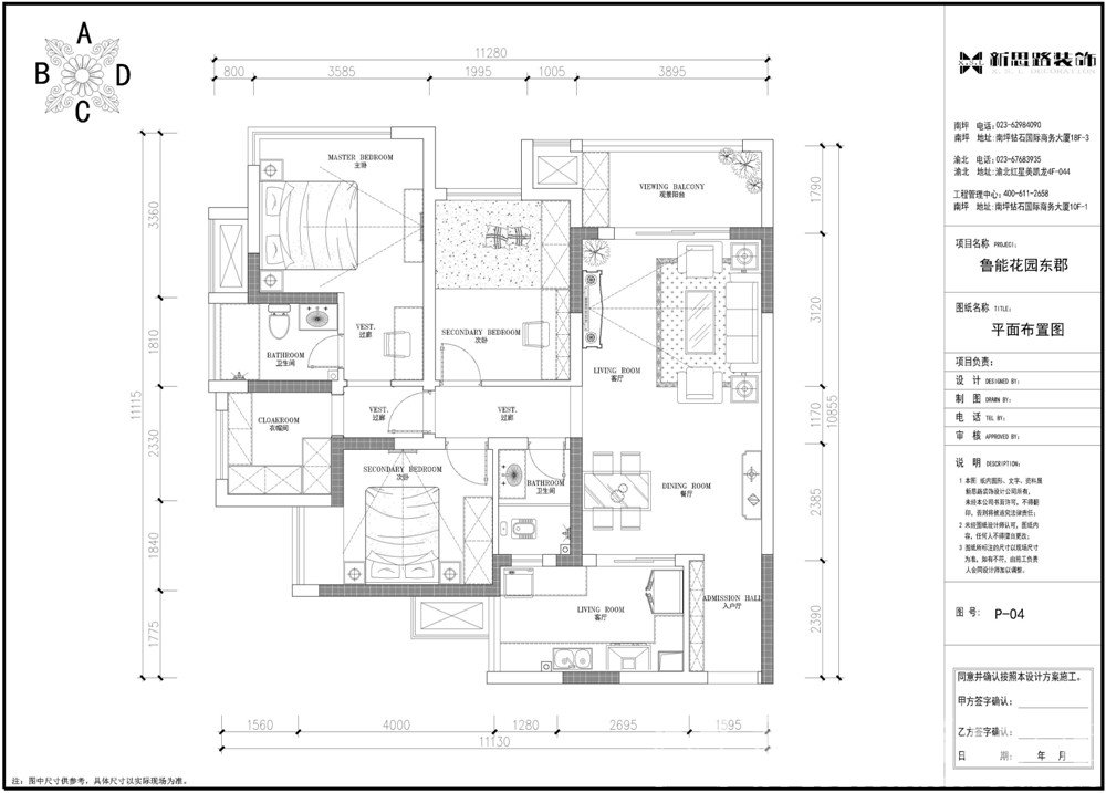
『户型介绍』
 
询问客户意见后,他们都认为没必要对户型有大的改动,我们便也没有将户型做出大改,只是把原本独立的衣帽间并入主卧好方便换衣服,爱美的女主人对此很满意。不过对于其中一个次卧设计时,因为家中常住人口只有他们三个,不用专门的客房,所以他们的儿子要求将屋子做成音乐练习室,满足练习架子鼓的需求。

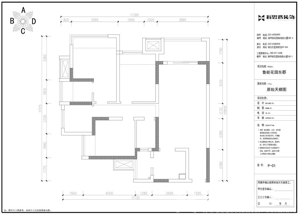
原始结构图
平面布置图

『客厅展示』
 
因为想营造出美式风格中的复古历史感,所以我们选取了颜色很深的琉璃绿色打造整体墙面,客厅再用深浅不同的墨绿色系与深棕色系来进行装饰。
沙发背景墙使用石膏线材勾画几何图形,古典优雅;陶瓷的小鹿漫步花间,野趣横生。复古花色的窗帘与真皮质地的沙发以及实木电视柜搭配起来正合适,线条分割成菱形网格状的乳白色电视背景墙大方低调,黄铜色美式吊灯干净明亮。深墨绿色的织锦桌旗无形中又添了点奢华意味,油青色的仿古装饰摆件也是非常经典的美式元素体现。


客厅-茶几与电视墙


客厅-窗帘与沙发




客厅-沙发与背景墙


客厅-整体



『餐厅展示』
    餐厅风格与客厅保持一致。实木餐桌不太大,恰好够一家三口结束忙碌的一天后共进温馨的晚餐。墙上壁画面积比较大,有效避免了墙面缺少装饰而显得过于空旷的问题,整体颜色也与房间搭配合适。滑门开关自如,轻松隔开厨房与餐厅,杜绝做“重口味”饭菜时造成的油烟困扰。



餐厅


餐厅-客厅


餐厅-餐桌


『厨房展示』
    厨房灶台使用白色大理石材质打造,料理台的设计更方便食物的制作。橱柜颜色也选取了同色系的白色,清新干净,让本是油烟满满的厨房视觉上看起来明亮整洁。

厨房



厨房-灶台与料理台

『主卧展示』
在衣帽间并入主卧后,卧室不用再设计衣柜的位置,只剩下床和简单的家具。那么如果想要整体格调升华,就要通过家具品质来提升。
深色木质家具与复古风的装饰正是美式装修风格的亮点之一,深青色的皮质床头与墙面色系相统一。卫生间的浴缸设计非常适合休息之时放松泡澡,桌子上的上永生花与盆栽点缀房间,生机勃勃。

 
主卧-整体


主卧-盆栽


主卧-床


卫生间-浴缸


主卧-衣帽间、床



『次卧展示』
 
次卧是帅气儿子的房间。学生难免书籍和杂物较多,床铺采用榻榻米的设计更便于物品收纳,长条形的书桌在摆放电脑后仍留有许多空间。书架近在咫尺,手边是旧式磁带播放器,心爱的架子鼓就在身后,音乐梦想和学习并不冲突,小小的空间满载的是青春的律动。

次卧-整体


次卧-床、书桌


//
梦想的距离很长
回家的路途很短
不管为梦奔走再远
家都是每个人心灵的港湾
ANBO.COM真诚提供服务
满足您对家的一切美好想象

 
 
在线客服

关注ANBO.COM官方公众号及时订阅最新优惠资讯
ANBO.COM - 安博(中国)